Savunpoistoikkuna
Saatavilla olevat rakenteet:
Savunpoistoikkuna
Alumiiniverhottu ulospäinaukeava ja alasaranoitu savunpoistoikkuna. Harikko ketjuavaajalla varustettuna savunpoistoikkuna on CE-hyväksytty.
Tekniset tiedot
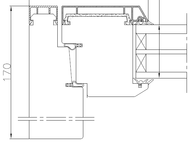
Rakenne: | Alumiiniverhottu ja kehysrunkoinen, kokonaisvahvuus 90mm. Leveys 500-2500mm, korkeus 400mm- 2300mm |
Pinta: | Ulkopuoli alumiiniverhottu, sisäpuoli mäntyprofiili |
Saranat: | Alasaranoitu, murtosuojatut Abloy N3248-110TMKSS2-CE Fe/Zn saranat 2-4 kpl |
Avaaja: | Harikko ketjuavaaja |
Tiiviste: | 2-kertainen tiivistys. Harmaa silikonitiiviste puitteessa ja karmissa |
Karmi: | Lamelliliimattu mäntykarmi 131 (vakio) /170 (vakio) /210mm |
Lasitus: | 3K eristyslasi |
Puuosien vakiovalkoinen: | NCS S 0502-Y |
Alumiinien vakiovalkoinen: | RAL 9010 |
Takuu: | 2 vuoden rakennetakuu |

Lisävarusteet
Väri vaihtoehdot
- Alumiinien vakiovärit: valkoinen RAL 9010, tummanharmaa RAL 7024, musta RAL 9005, tummanruskea RR 32
- Ulkopuoli: saatavilla myös muissa RAL värikartan sävyissä
- Sisäpuoli: saatavilla myös erikoisväri peittomaalit, kuultovärit, lakkaus
- Karmit saatavilla eri värisinä kuin ovi
Lasivaihtoehdot
- Kirkas (vakio), stippolyte, satiini
- Erikoislasitukset
Karmisyvyydet
- 131 mm (vakio), 170 mm, 210 mm
Lukitusratkaisut
- Harikko ketjuavaajat
- Pitkäsulkija FIX 896 + aukipitolaite 150 (ei CE-hyväksytty)
Lisävarusteet
- Sälekaihtimet
- Irtoristikot
- Savunpoistokeskukset